Проект 3
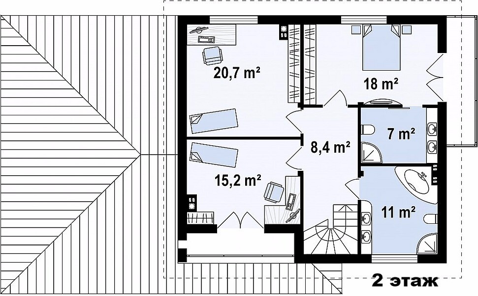
Размер дома: 10,7м х 18,7мПлощадь здания: 225,7 м2
Высота стен: 1 эт. 3 2 эт. 2,8
Стоимость:
Стоимость домокомплекта: 1 534 760 руб.
Стоимость сборки: 241500 руб.
Стоимость крепежного материала: 82 110 руб. ИТОГО: 1 858 370 руб.
Стоимость кровли: 294 044 руб.
Стоимость окон: 176 400 руб.
Стоимость фундамента: 231 000 руб.
Высота стен: 1 эт. 3 2 эт. 2,8
Стоимость:
Стоимость домокомплекта: 1 534 760 руб.
Стоимость сборки: 241500 руб.
Стоимость крепежного материала: 82 110 руб. ИТОГО: 1 858 370 руб.
Стоимость кровли: 294 044 руб.
Стоимость окон: 176 400 руб.
Стоимость фундамента: 231 000 руб.